
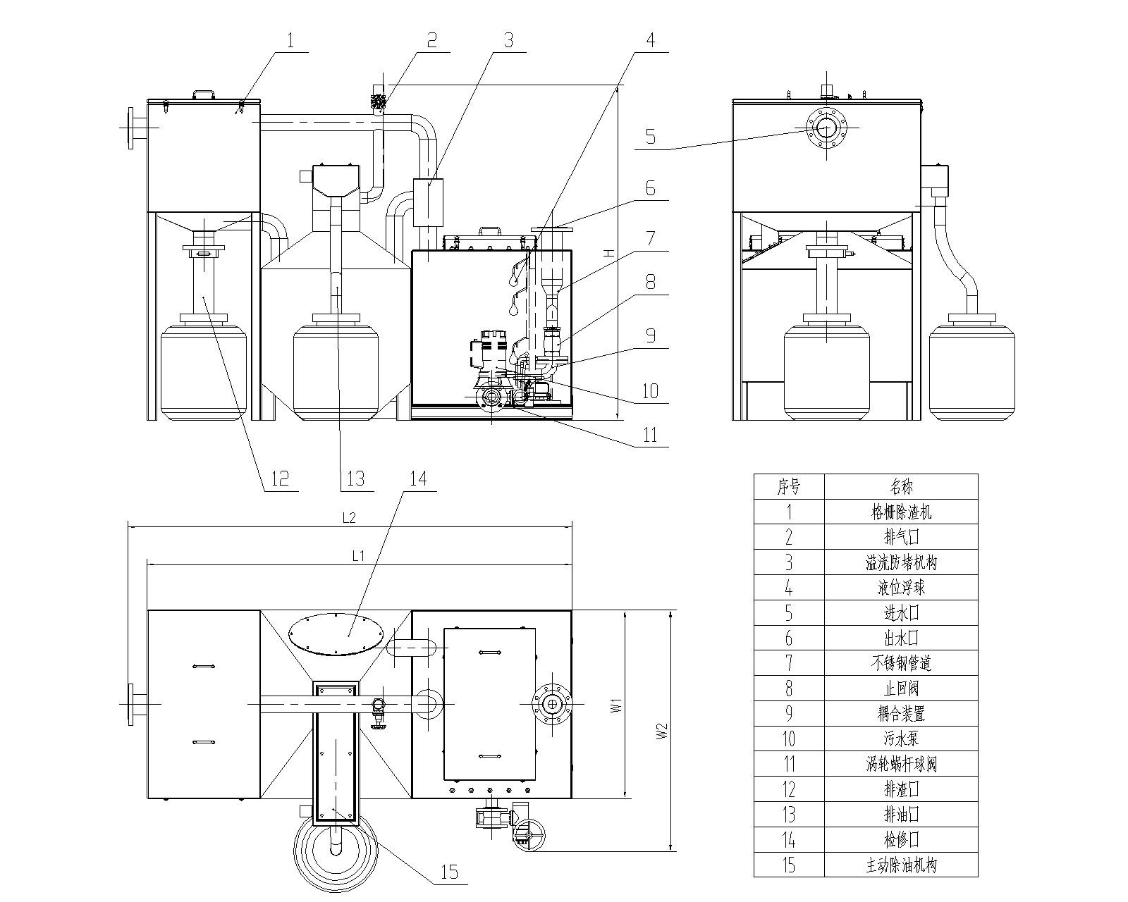
● 設備結構圖:

● 功能說明:
①固液分離倉 : 設有過濾柵除,定期人工手動打開排渣閥放渣進入集渣桶中,周圍設計了密閉式,有效的防止了污水自由下落時建起水花,同時隔絕了異味。
②油水分離倉 : 高效集油功能 , 設備排油口裝有手動放油閥,定期人工手動打開閥門排放進入集油桶中。在備上配備加熱功率和溫度測定有著嚴格的要求。油水混合物進入第二倉加熱設備進行加熱,防止油水結塊,加大了油水分離速度。
③污水提升倉:可將處理后的污水強排至集水井或者化糞池。
④錐形沉淀排污裝置:微小雜物及泥沙沉淀在錐形排污管道中,定期打開閥門,雜物被沖進污水提升倉,一并排出。
●設備技術參數:
注:網站上所以產品的參數僅供參考如果更改恕不另行通知
